Medernach N° réf : MEDERNACH_maison LOT 04_gros-oeuvre 658 000 €
Description
Maison nouvelle à 4 chambres à coucher en construction, dans un endroit très calme de MEDERNACH. Travaux de gros oeuvres terminés. Double emplacements intérieurs + un emplacement extérieur compris dans le prix de vente.
Vous pouvez choisir vous mêmes encore les revêtements de sols, portes intérieures et matériel sanitaire.
Finition travaux pour 3e trimestre 2026.
Prix indiqué de EUR 658.000 = gros-oeuvre fermés htva !
Composition de maison 1 avec une surface utile de 176.5 m² et habitable de 136.50 m², terrasse de 30.00 m² et un jardin :
- sous-sol : chaufferie/buanderie (8.5 m²), garage pour 2 voitures (49.40 m²), hall (8.10 m²), entrée (6.70 m²).
- rez-de-chaussée : hall d'entrée (11.80 m²) – cuisine ouverte avec salle à manger et séjour (44.20 m²) – salle de douche (5.20 m²) – WC séparé (1.80 m²) – chambre 1 (15.40 m²) – terrasse (30.00 m²).
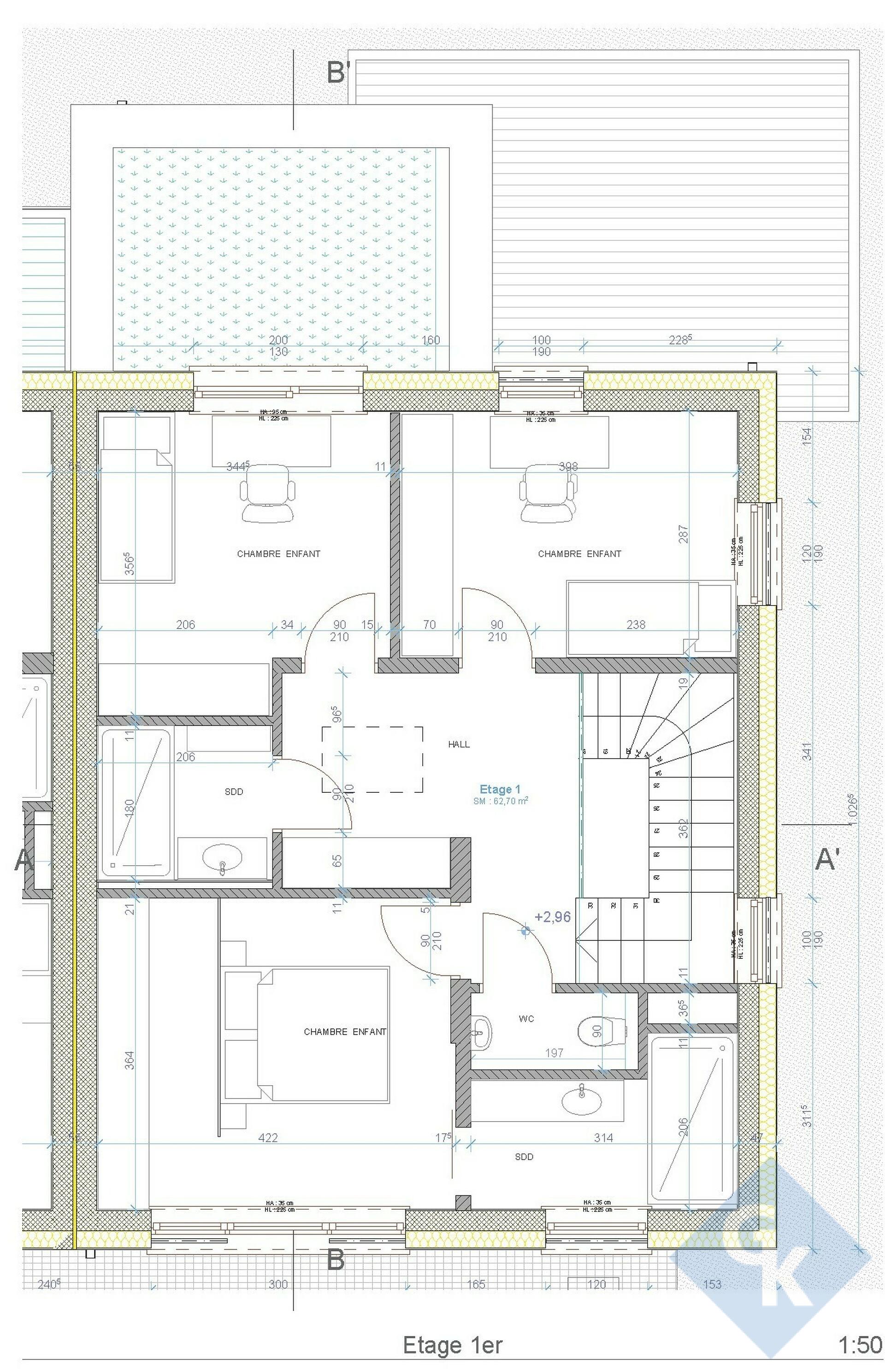
- 1er étage : hall (9.80 m²) – chambre 2 (11.10 m²) – chambre 3 (11.10 m²) – chambre 4 (15.40 m²) – 2 salles de douche (5.20 + 3.70 m²) – WC séparé (1.80 m²) – grenier (25.20 m²).
Pour info : possibilité d'acquérir la maison 2 - libre de 4 côtés au prix de 1.186.145,- htva, n'hésitez pas à nous contacter pour plus d'informations.
N.B. : Tous les prix indiqués s'entendent hors TVA.
Pour tout complément d'information et/ou la documentation détaillée, veuillez nous contacter par mail : info@immonord.lu ou par tél. : 26 811 911-1.
Proposition de crédit/financement à taux compétitif auprès d'une banque luxembourgeoise incluse dans nos services gratuits et complets 'SOLUTIONS ALL IN ONE'. Nous nous occupons de votre dossier. Laissez un ancien banquier expérimenté négocier votre demande de crédit immobilier au meilleur taux.
Vous pouvez choisir vous mêmes encore les revêtements de sols, portes intérieures et matériel sanitaire.
Finition travaux pour 3e trimestre 2026.
Prix indiqué de EUR 658.000 = gros-oeuvre fermés htva !
Composition de maison 1 avec une surface utile de 176.5 m² et habitable de 136.50 m², terrasse de 30.00 m² et un jardin :
- sous-sol : chaufferie/buanderie (8.5 m²), garage pour 2 voitures (49.40 m²), hall (8.10 m²), entrée (6.70 m²).
- rez-de-chaussée : hall d'entrée (11.80 m²) – cuisine ouverte avec salle à manger et séjour (44.20 m²) – salle de douche (5.20 m²) – WC séparé (1.80 m²) – chambre 1 (15.40 m²) – terrasse (30.00 m²).
- 1er étage : hall (9.80 m²) – chambre 2 (11.10 m²) – chambre 3 (11.10 m²) – chambre 4 (15.40 m²) – 2 salles de douche (5.20 + 3.70 m²) – WC séparé (1.80 m²) – grenier (25.20 m²).
Pour info : possibilité d'acquérir la maison 2 - libre de 4 côtés au prix de 1.186.145,- htva, n'hésitez pas à nous contacter pour plus d'informations.
N.B. : Tous les prix indiqués s'entendent hors TVA.
Pour tout complément d'information et/ou la documentation détaillée, veuillez nous contacter par mail : info@immonord.lu ou par tél. : 26 811 911-1.
Proposition de crédit/financement à taux compétitif auprès d'une banque luxembourgeoise incluse dans nos services gratuits et complets 'SOLUTIONS ALL IN ONE'. Nous nous occupons de votre dossier. Laissez un ancien banquier expérimenté négocier votre demande de crédit immobilier au meilleur taux.
Détail du bien
Intérieur
| Surface : 176.50 m² |
| Année Construction : 2025 |
| Nb de chambres : 4 |
| Disponibilité : à convenir |
| Animaux acceptés : Oui |
Énergie
| Chauffage au sol : Oui |
| Pompe à chaleur : Oui |
| Triple vitrage : Oui |
| Indice énergétique : A |
| Indice isolation : B |
Sécurité
| Parlophone : Oui |
| Vidéophone : Oui |
Extérieur
| Jardin : Oui |
| Terrasse : 30 m² |
| Terrain : 3.18 ares |
Parking
| Garage : 2 |
| Parkings : 1 |
Confort
| Volets électriques : Oui |
localisation
IMMO NORD Ingeldorf
téléphone






















