Esch-Sur-Alzette N° réf : AE140-006GK 495 000 €
Description
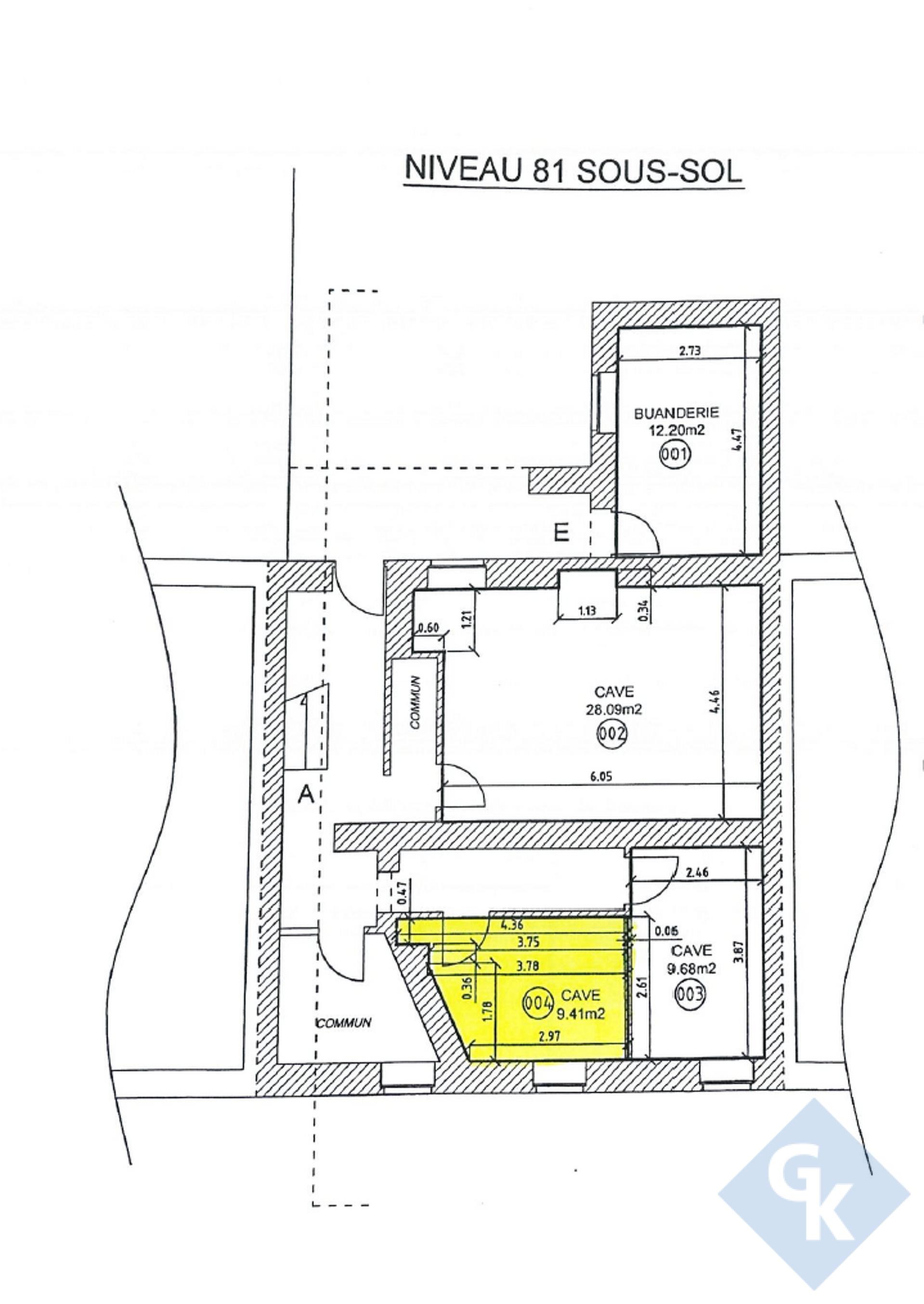
Bel appartement à 2 chambres (1er étage) rénové à partir de 2018, situé dans une petite résidence à 4 unités. Garage fermé pour 1 voiture et cave de 9.41 m² comprises.
Espace grenier pour stockage (+- 44 m²) et jouissance d'un jardin et d'une terrasse, à partager avec les 3 autres copropriétaires.
Situation centrale et calme à proximité immédiate de toutes les commodités : écoles, médecins, pharmacie, zone piétonne, commerces, etc.
Rénovations faites à partir de 2018: menuiseries extérieures avec des volets en grande partie électriques, installations techniques de chauffage, sanitaire, électricité et plomberie; toiture refaite en 2023 (ardoise); cage d'escalier en 2020.
Composition de l'appartement d'une surface habitable de 72.48 m² :
* hall d'entrée (3.38 m²), salon / salle à manger / cuisine de 2018 (29.96 m²), salle de douche + WC + buanderie (11 m²), chambre 1 (15.13 m²), chambre 2 (12.24 m²).
* cave privative de (9.41 m²) au sous-sol
* garage fermé (11.75 m²) au RDCH.
* espace grenier pour stockage
* jouissance d'un jardin et d'une terrasse commune.
Pour tout renseignement complémentaire ou information détaillée, veuillez nous contacter par mail info@immonord.lu ou par tél : 26 811 911 1.
Proposition de crédit/financement à taux compétitif auprès d'une banque Luxembourgeoise incluse dans nos services gratuits et complets 'SOLUTIONS ALL IN ONE'. Nous nous occupons de votre dossier. Laissez un ancien banquier expérimenté négocier votre demande de crédit immobilier au meilleur taux.
Espace grenier pour stockage (+- 44 m²) et jouissance d'un jardin et d'une terrasse, à partager avec les 3 autres copropriétaires.
Situation centrale et calme à proximité immédiate de toutes les commodités : écoles, médecins, pharmacie, zone piétonne, commerces, etc.
Rénovations faites à partir de 2018: menuiseries extérieures avec des volets en grande partie électriques, installations techniques de chauffage, sanitaire, électricité et plomberie; toiture refaite en 2023 (ardoise); cage d'escalier en 2020.
Composition de l'appartement d'une surface habitable de 72.48 m² :
* hall d'entrée (3.38 m²), salon / salle à manger / cuisine de 2018 (29.96 m²), salle de douche + WC + buanderie (11 m²), chambre 1 (15.13 m²), chambre 2 (12.24 m²).
* cave privative de (9.41 m²) au sous-sol
* garage fermé (11.75 m²) au RDCH.
* espace grenier pour stockage
* jouissance d'un jardin et d'une terrasse commune.
Pour tout renseignement complémentaire ou information détaillée, veuillez nous contacter par mail info@immonord.lu ou par tél : 26 811 911 1.
Proposition de crédit/financement à taux compétitif auprès d'une banque Luxembourgeoise incluse dans nos services gratuits et complets 'SOLUTIONS ALL IN ONE'. Nous nous occupons de votre dossier. Laissez un ancien banquier expérimenté négocier votre demande de crédit immobilier au meilleur taux.
Détail du bien
Intérieur
| Surface : 72.48 m² |
| Rénové : Oui |
| Nb de chambres : 2 |
| Disponibilité : à convenir |
| Nombre d'étages : 3 |
| Étage : 1 |
| Animaux acceptés : Oui |
Énergie
| Chauffage au gaz : Oui |
| Double vitrage : Oui |
| Indice énergétique : G |
| Indice isolation : H |
Sécurité
| Parlophone : Oui |
| Vidéophone : Oui |
Parking
| Garage : 1 |
Confort
| Volets électriques : Oui |
localisation
IMMO NORD Ingeldorf
téléphone















