Bech N° réf : MN021-001MK_lot2droite 1 050 000 €
Description
Maison jumelée neuve (lot 2 – côté droite) en future construction sur un terrain de 4,21 ares, comprenant 4 chambres, une terrasse de 18 m² et un jardin. Situation calme, à proximité de toutes les commodités de la vie quotidienne.
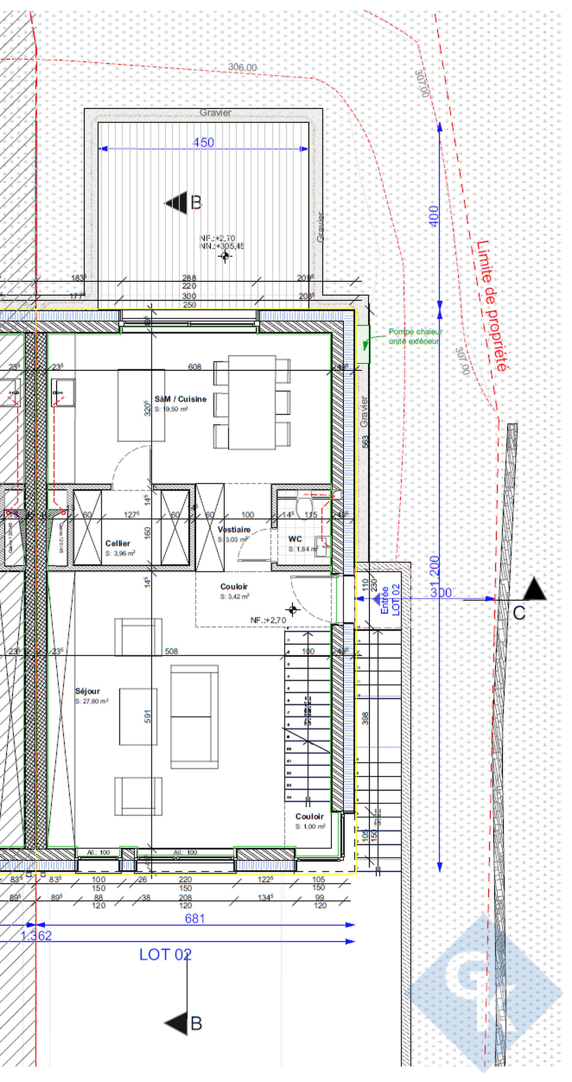
Composition de la maison avec une surface totale de 218 m² (habitable de +/- 158 m²) :
Au RDCH : garage pour 2 voitures (25,09 m²) ; couloir (12,79 m²) ; cave/buanderie (9,06 m²) ; cave à vin (3,00 m²) ; local technique (9,00 m²) ; local poubelles (1,21 m²) ; 2 parkings extérieurs.
1er étage : hall d'entrée (3,42 m²) ; cuisine et salle à manger (19,50 m²) avec accès à la terrasse et au jardin ; séjour (28,80 m²) ; débarras (3,96 m²) ; vestiaire (3,03 m²) ; WC séparé (1,84 m²).
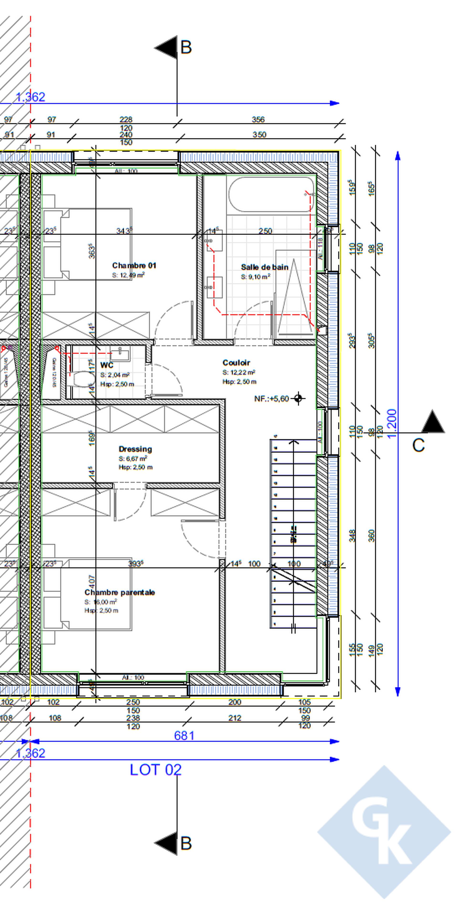
2ième étage : hall de nuit (12,22 m²) ; salle de bain (9,09 m²) ; chambre 1 (12,49 m²) ; WC séparé (2,04 m²) ; chambre 2 (16,00 m²) avec dressing (6,67m²).
3ième étage : hall de nuit (2,28 m²) ; chambre 3 (13,93 m²) ; chambre 4 (13,28 m²) ; salle de bain (6,73 m²) ; WC séparé (2,49 m²)
N.B. : Prix annoncé = prix de vente hors TVA.
Pour tout complément d'information, veuillez nous contacter par mail : info@immonord.lu ou par tél. : 26 811 911 1.
Proposition de crédit/financement à taux compétitif auprès d'une banque Luxembourgeoise incluse dans nos services gratuits et complets 'SOLUTIONS ALL IN ONE'. Nous nous occupons de votre dossier. Laissez un ancien banquier expérimenté négocier votre demande de crédit immobilier au meilleur taux.
Composition de la maison avec une surface totale de 218 m² (habitable de +/- 158 m²) :
Au RDCH : garage pour 2 voitures (25,09 m²) ; couloir (12,79 m²) ; cave/buanderie (9,06 m²) ; cave à vin (3,00 m²) ; local technique (9,00 m²) ; local poubelles (1,21 m²) ; 2 parkings extérieurs.
1er étage : hall d'entrée (3,42 m²) ; cuisine et salle à manger (19,50 m²) avec accès à la terrasse et au jardin ; séjour (28,80 m²) ; débarras (3,96 m²) ; vestiaire (3,03 m²) ; WC séparé (1,84 m²).
2ième étage : hall de nuit (12,22 m²) ; salle de bain (9,09 m²) ; chambre 1 (12,49 m²) ; WC séparé (2,04 m²) ; chambre 2 (16,00 m²) avec dressing (6,67m²).
3ième étage : hall de nuit (2,28 m²) ; chambre 3 (13,93 m²) ; chambre 4 (13,28 m²) ; salle de bain (6,73 m²) ; WC séparé (2,49 m²)
N.B. : Prix annoncé = prix de vente hors TVA.
Pour tout complément d'information, veuillez nous contacter par mail : info@immonord.lu ou par tél. : 26 811 911 1.
Proposition de crédit/financement à taux compétitif auprès d'une banque Luxembourgeoise incluse dans nos services gratuits et complets 'SOLUTIONS ALL IN ONE'. Nous nous occupons de votre dossier. Laissez un ancien banquier expérimenté négocier votre demande de crédit immobilier au meilleur taux.
Détail du bien
Intérieur
| Surface : 218.00 m² |
| Année Construction : 2026 |
| Nb de chambres : 4 |
| Salle(s) de bain : 2 |
| Disponibilité : à convenir |
| Nombre d'étages : 3 |
Énergie
| Chauffage au sol : Oui |
| Pompe à chaleur : Oui |
| Triple vitrage : Oui |
| Vmc double flux : Oui |
| Solaire thermique : Oui |
| Indice énergétique : A |
| Indice isolation : A |
Sécurité
| Vidéophone : Oui |
Extérieur
| Jardin : Oui |
| Terrasse : 18 m² |
| Terrain : 4.21 ares |
Parking
| Garage : 2 |
| Parkings : 2 |
Confort
| Volets électriques : Oui |
localisation
IMMO NORD Ingeldorf
téléphone












